B U R N I N G T R E E L A N E

the burning tree lane renovation project

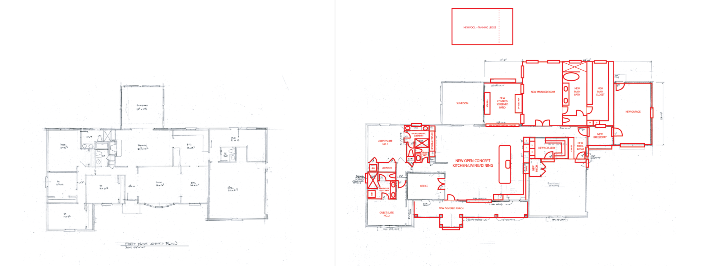
Burning Tree Lane is a deeply meaningful project for me. The clients had recently purchased this 1973 stick-built home, beautifully set along a renowned Midwestern golf course, with the vision of transforming it into something truly special. As empty nesters, they wanted a peaceful retreat for themselves, while also creating a welcoming home where family could comfortably gather and stay.

Every bedroom was thoughtfully designed to include its own ensuite bath and laundry, allowing each family member a sense of privacy and sanctuary while under one roof. Because the clients love to entertain, opening up the home was essential. We reimagined the layout to create an inviting, open-concept living space with generous seating, a spacious kitchen, and an adjacent scullery designed to support both everyday living and larger gatherings.

The client’s modern sensibility was an important element to honor throughout the renovation. I began with a warm, neutral foundation and layered in light, texture, and thoughtful details to enhance the home’s natural ease. Creating interiors that feel light, bright, and airy is central to my design philosophy, which led us to remove walls, vault ceilings, add windows, and widen hallways and door frames throughout the home.

A strong connection to the outdoors was also key. We added a covered screened porch just off the kitchen, accessed through four-panel sliding glass doors. Designed as a true extension of the home, this space includes a built-in fireplace, allowing the family to enjoy indoor-outdoor living for much of the year.

With the addition of a main suite, screened porch, extra garage, breezeway, vaulted ceilings, and refreshed light-filled finishes, this once-quaint home now feels expansive, modern, and deeply inviting. Burning Tree Lane has been a true labor of love, and I can’t wait to see this family create many happy memories here for years to come.

m o o d b o a r d

c o l o r & t e x t u r e s t o r y

Overall Mood

Warm, light-filled, and quietly modern. A serene retreat that feels elevated yet deeply livable. The palette is grounded in soft neutrals and organic textures, allowing architecture, light, and landscape to take center stage.

Every space feels light, breathable, and intentional. It is a balance of modern restraint and warmth. Textures are layered, never loud. Colors whisper rather than shout. The home feels open and expansive, yet intimate and personal. A true retreat for quiet mornings, lively gatherings, and long evenings spent connected to both family and nature.

Color

Foundational Neutrals

  • Warm ivory & soft alabaster — walls and ceilings that reflect light and create an airy, expansive feel

  • Creamy taupe & pale stone — grounding tones that add depth without heaviness

  • Soft greige — a modern neutral that bridges warmth and restraint

Natural Accents

  • Weathered oak & light walnut — cabinetry, beams, and millwork that bring warmth and authenticity

  • Muted sage & olive undertones — subtle nods to the surrounding golf course landscape

  • Charcoal & soft black — used sparingly in hardware, lighting, and architectural moments for contrast and definition

  • Calming Blues - offer a level of serenity & retreat

Texture & Materiality

Organic & Inviting

  • Linen, cotton, wool blends, with leather accents — relaxed upholstery and drapery that feel effortless and tactile

  • Natural stone (limestone, honed marble, or quartzite) — calm, timeless surfaces with soft movement

  • Hand-finished plaster or limewash — adds depth and character while maintaining a light touch

Architectural Warmth

  • Wide-plank wood floors — lightly finished to enhance grain and natural variation

  • Wood ceiling details & beams — reinforcing height and openness without visual weight

  • Reeded or fluted wood accents — subtle rhythm and modern texture

Indoor–Outdoor Connection

  • Woven materials (rattan, rush, subtle cane) — bringing softness and craftsmanship into gathering spaces

  • Blackened steel or bronze details — door frames, window mullions, and porch elements that frame views and anchor the design

  • Slate hearth & textured masonry — grounding the screened porch and creating year-round warmth

e l e v a t i o n p l a n s

front elevation

rear elevation

f l o o r p l a n s

original floorplan

revised floorplan

Previous
Previous

PAINT & DRAW

Next
Next

CUSTOM LOGO & MERCH